Architectural Projects
Portfolio
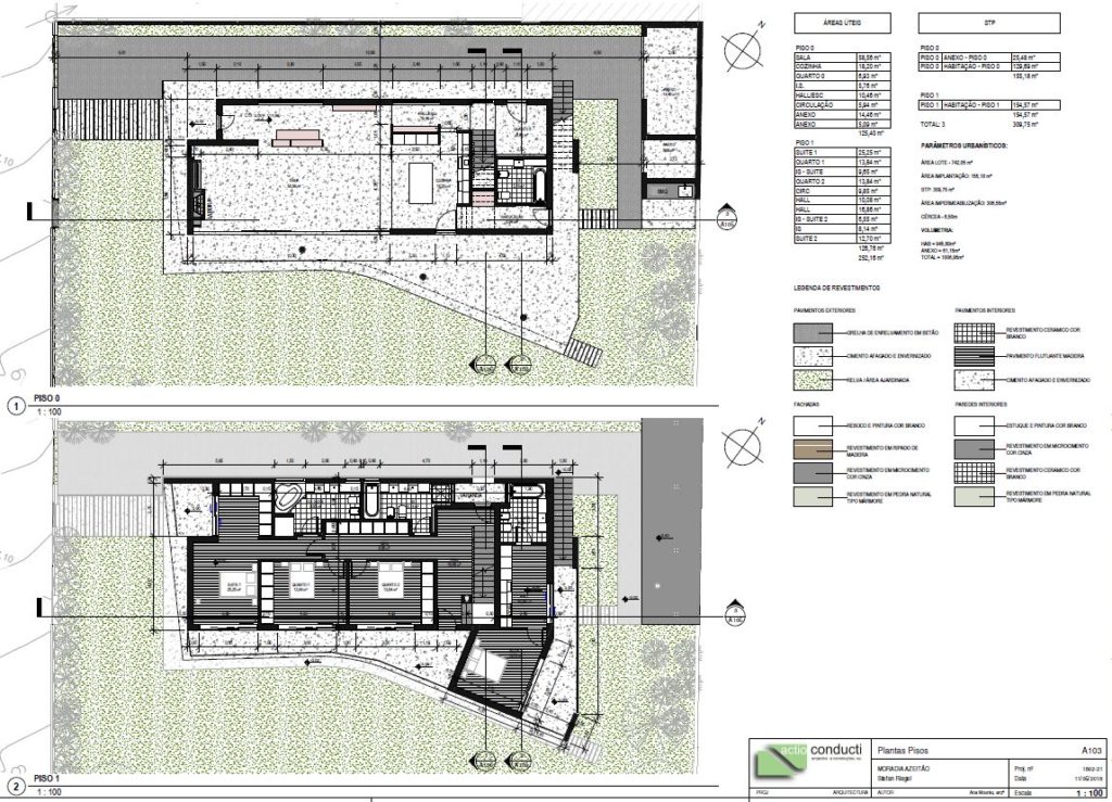
HAB T4+T1
Setúbal Azeitão - Project | Design | Promotion
Created by Ana Mourão